Краснодар. п. Российский ул. Каспийская-12

Ежедневно 9 - 20

Меню сайта

Хит
Скидка
Новинка
От 3-х дней
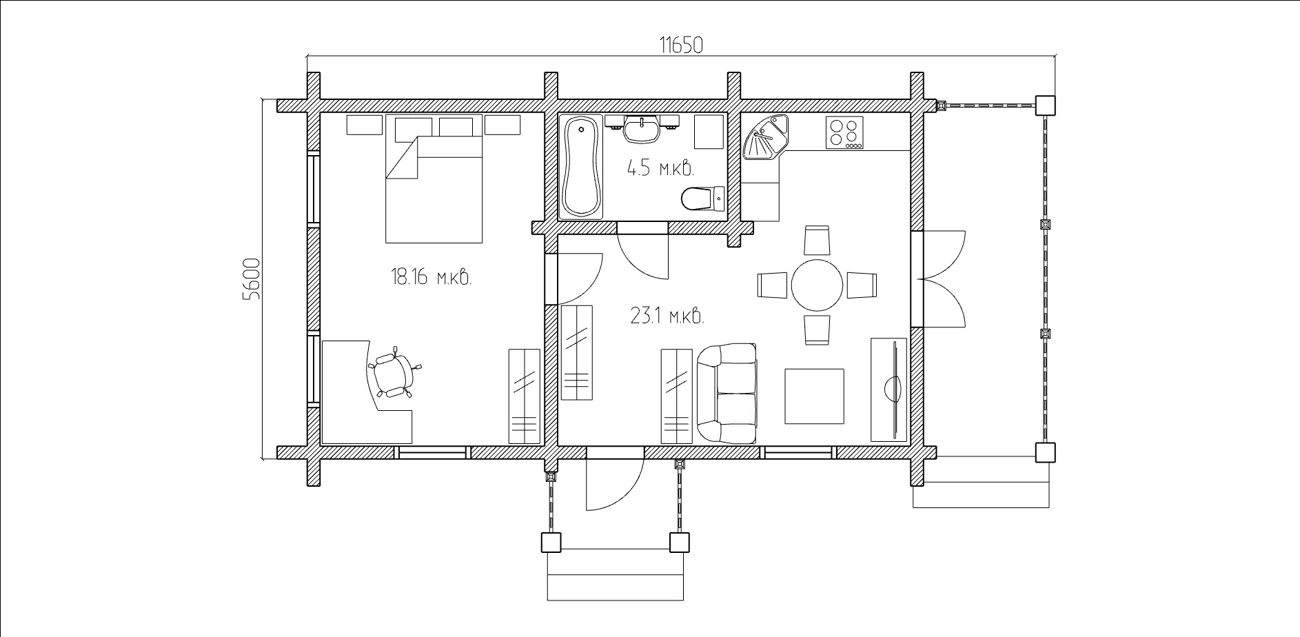
Проект дома из дерева С90
  • Чистая площадь: 45 м2;

  • Материал стен: Лафет 200х300 ;

  • Тип рубки: Норвержская рубка;

  • Кровля: Металлочерепица;

  • Фундамент: ЖБ сваи с обвязкой;

Заказать в 1 клик
Бесплатно вызвать замерщика

Описание проекта

Мечта миллионов людей о комфортном уединённом домике в деревне, нашла отражение в проекте сруба загородного бревенчатого дома из лафета СС45. Комфортабельная комната в 18 квадратных метров найдётся не в каждой городской квартире. В комнате может быть расположено всё необходимое для жизни, комфортного отдыха и время препровождения. Зал совмещённый с кухней и прямой выход из зала на террасу, дарят ощущения свободы и безграничного пространства. А терраса становится дополнительной жилой площадью и позволит пить горячий чай из самовара наслаждаясь свежим воздухом. Дом — истинная мечта двух из трёх городских жителей уставших от копоти и смога шумного города и желающих уединения. Так же сохранится возможность встретиться с друзьями, посидеть в просторном зале за большим столом и конечно обустроить место в зале для ночлега засидевшихся гостей. Комфорт и уединение — это главное достоинство небольшого сруба дома из лафета выполненного по проекту СС45

Раскрыть полностью
Видеообзор проекта

Дома, построенные по этому проекту

Листайте влево/вправо
Смотреть больше работ